CE ZA AR 25

Obnova a nadstavba - materská škola Jarovce

Bratislava

Rok realizácie: 2024

Ateliér: EDITED s.r.o.

Architektúra: Edita Vráblová, Michal Czafík, Branislav Puškár

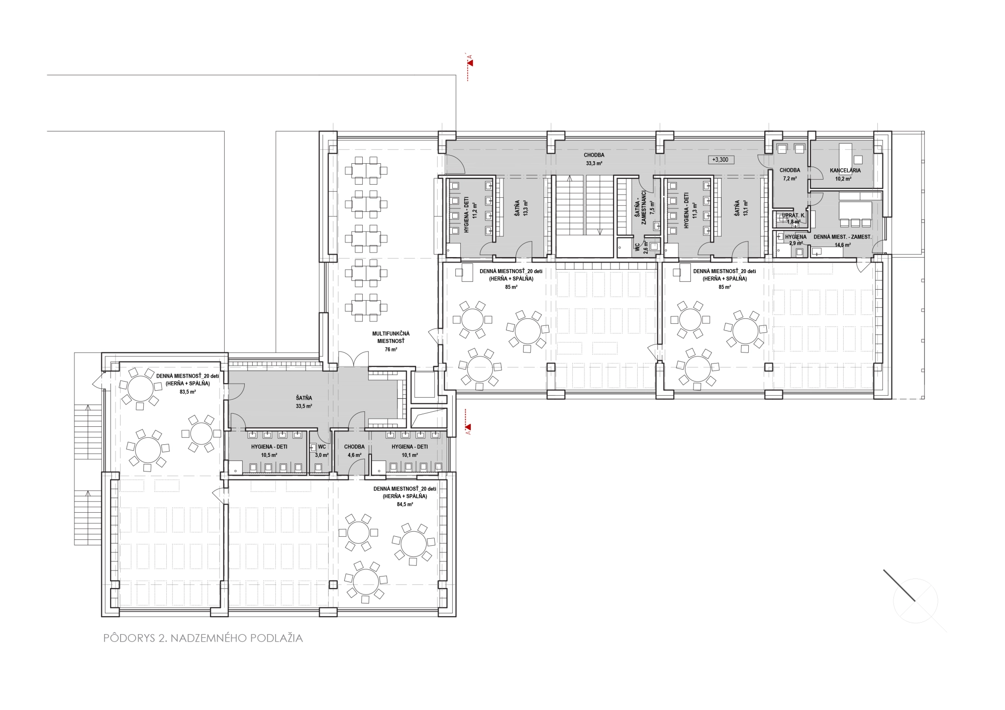
Projekt rieši transformáciu nevyužívaného objektu detských jaslí z 80-tych rokov 20. storočia na novú materskú školu, ktorá bude mať kapacitu pre nových šesť kmeňových tried. Zámerom bolo saturovať potreby predškolskej výchovy narastajúceho počtu detí v pohraničnej mestskej časti. Cieľom architektonického riešenia bolo preniesť pôvodné hodnoty objektu vybudovaného v konštrukčnom systéme MSRP do samotného návrhu. Aj z tohto dôvodu boli na objekte zachované pôvodné stĺpy, obvodové zavesené panely, rozmery okenných otvorov a samotná proporcia hmoty. Do riešenia sú integrované herné prvky vo forme zelených efemérnych kociek, ktorých funkčnú náplň určujú deti.

Foto: Matej Kováč

Foto: Matej Kováč

Foto: Matej Kováč

Foto: Matej Kováč

Foto: EDITED s.r.o.

Foto: EDITED s.r.o.

Vyhlasovateľ:
Organizační partneri:
Pod záštitou:
Samosprávnych krajov Slovenska
Primátora hlavného mesta SR - Bratislavy
Starostu mestskej časti Bratislava - Staré mesto
Z verejných zdrojov podporil:
Partner mobility:
Hlavní partneri:
Partneri:
Špeciálny partner:
Priestorový partner:
Produktoví partneri:
Generálni mediálni partneri:
Hlavní mediálni partneri:
Hlavní online mediálni partneri:
Mediálni partneri: