CE ZA AR 25

Metropol - coliving

Bratislava

Rok realizácie: 2024

Ateliér: BEEF ARCHITEKTI

Architektúra: Rado Buzinkay, Andrej Ferenčík, Peter Baroš, Marika Izakovičová

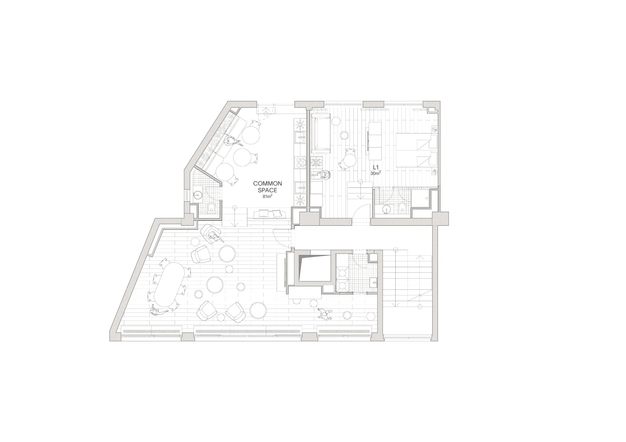
Budova Metropol má za sebou bohatú históriu poznačenú zmenou využitia od bývania a centra spoločenského života až po administratívu, ktorá pôvodnú funkciu úplne vymazala. Naša konverzia vracia do objektu bývanie a spoločenskú funkciu v modernom kontexte. Vytvára coliving, ktorý zachováva autentickú atmosféru miesta a zanechanie myšlienky sociálnej interakcie v podobe bývania, ktoré dokáže spájať rôzne vrstvy obyvateľstva. Moderný coliving je tak prirodzeným pokračovaním historickej funkcie Metropolu, ktorý sa vracia k svojim spoločenským koreňom v novej, súčasnej podobe.

Foto: Lenka Némethová

Foto: Lenka Némethová

Foto: Lenka Némethová

Foto: Autor: Lenka Némethová

Foto: TYPICKÉ PODLAŽIE

Foto: 2. NP KOMUNITNÉ PRIESTORY

Vyhlasovateľ:
Organizační partneri:
Pod záštitou:
Samosprávnych krajov Slovenska
Primátora hlavného mesta SR - Bratislavy
Starostu mestskej časti Bratislava - Staré mesto
Z verejných zdrojov podporil:
Partner mobility:
Hlavní partneri:
Partneri:
Špeciálny partner:
Priestorový partner:
Produktoví partneri:
Generálni mediálni partneri:
Hlavní mediálni partneri:
Hlavní online mediálni partneri:
Mediálni partneri: