CE ZA AR 25

Kopčianka

Bratislava

Rok realizácie: 2023

Ateliér: PANTOGRAPH

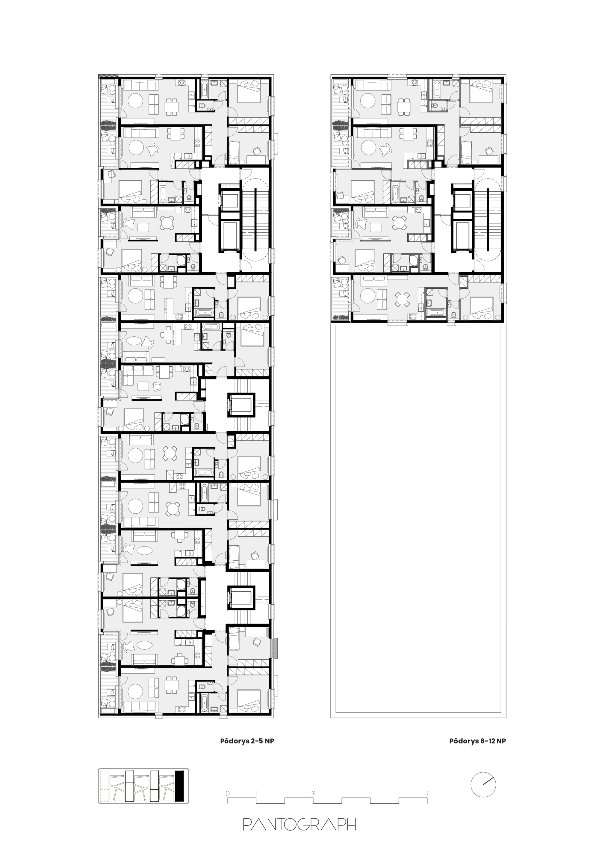
V projekt Kopčianka, v bývalej bratislavskej zóne Matador, sa harmonicky prelína súčasné bývanie s miestnym priemyselným dedičstvom. Fasáda, inšpirovaná priemyselnou estetikou, dodáva modernému architektonickému prostrediu robustnú príťažlivosť. Protiváhou industriálneho charakteru sú zelené dvory navrhnuté s prírodným terénom tak, aby umožnili rast akýmkoľvek stromom. Parkovanie integrované výlučne v priestoroch pod budovami alebo na uliciach kladie základy pre budúcu transformáciu ulice na kvalitné verejné priestranstvo bez potreby parkovacích miest. Kopčianka je modelovým príkladom práce s industriálnym prostredím a zároveň aplikácie predpokladov dynamického vývoja paradigiem dopravy.

Foto: Rastislav Blaško

Foto: Rastislav Blaško

Foto: Rastislav Blaško

Foto: PANTOGRAPH

Foto: PANTOGRAPH

Foto: PANTOGRAPH

Vyhlasovateľ:
Organizační partneri:
Pod záštitou:
Samosprávnych krajov Slovenska
Primátora hlavného mesta SR - Bratislavy
Starostu mestskej časti Bratislava - Staré mesto
Z verejných zdrojov podporil:
Partner mobility:
Hlavní partneri:
Partneri:
Špeciálny partner:
Priestorový partner:
Produktoví partneri:
Generálni mediálni partneri:
Hlavní mediálni partneri:
Hlavní online mediálni partneri:
Mediálni partneri: