CE ZA AR 25

Panelák

Bratislava

Rok realizácie: 2022

Ateliér: Kilo / Honč

Architektúra: Matej Honč, Richard Kilo

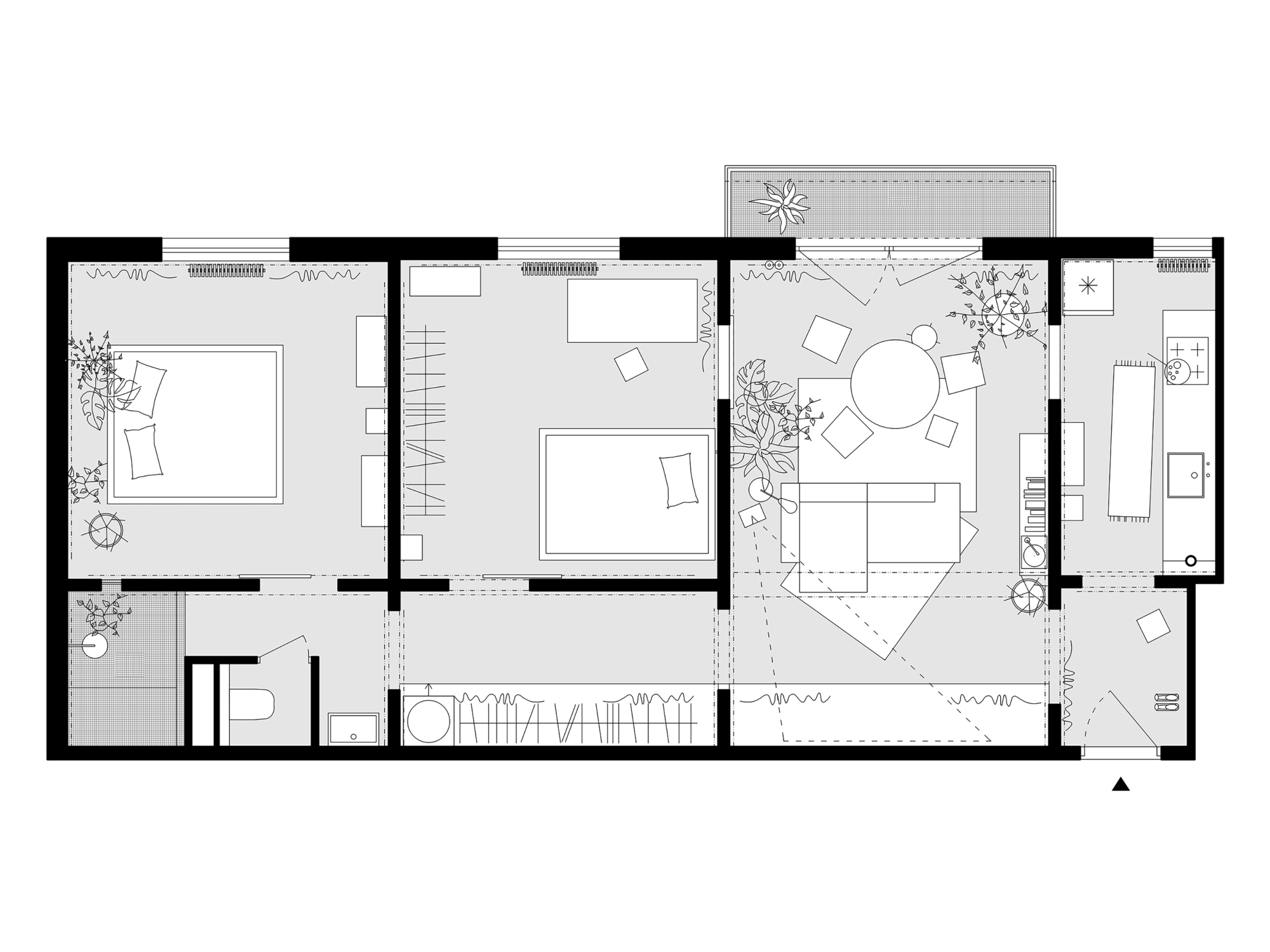
Proces udržateľnej adaptácie. Práca s typizovaným pôdorysom panelových domov zo 60-tych rokov. Definovanosť vzťahov v rodine a miera intimity sa z generácie na generáciu menia. Pôvodnému priestoru chýba ľahkosť. Je príliš rigidný, štruktúrovaný a definovaný. Dispozíciu definuje skeletovo-panelový priestorový rám s osovým rozmerom 3,9 x 3,9 metra a jasne vymedzuje miestnosti. Každú uzavretú, vizuálne a akusticky oddelenú. Túto priestorovú mriežku sa snažíme uchopiť viac ako nositeľa základného ohraničenia priestoru a nie ako nedotknuteľný element striktne definujúci priestory. Schému narúšame jednoduchými otvoreniami. Púšťame svetlo, vytvárame priehľady a hĺbku v miestach, kde nikdy neboli.

Foto: Matej Hakár

Foto: Matej Hakár

Foto: Matej Hakár

Foto: Matej Hakár

Vyhlasovateľ:
Organizační partneri:
Pod záštitou:
Samosprávnych krajov Slovenska
Primátora hlavného mesta SR - Bratislavy
Starostu mestskej časti Bratislava - Staré mesto
Z verejných zdrojov podporil:
Partner mobility:
Hlavní partneri:
Partneri:
Špeciálny partner:
Priestorový partner:
Produktoví partneri:
Generálni mediálni partneri:
Hlavní mediálni partneri:
Hlavní online mediálni partneri:
Mediálni partneri: