CE ZA AR 25

BROT

Bratislava

Rok realizácie: 2021

Ateliér: GRAU

Architektúra: Andrej Olah, Matej Kurajda, Filip Marčák, Jana Filípková

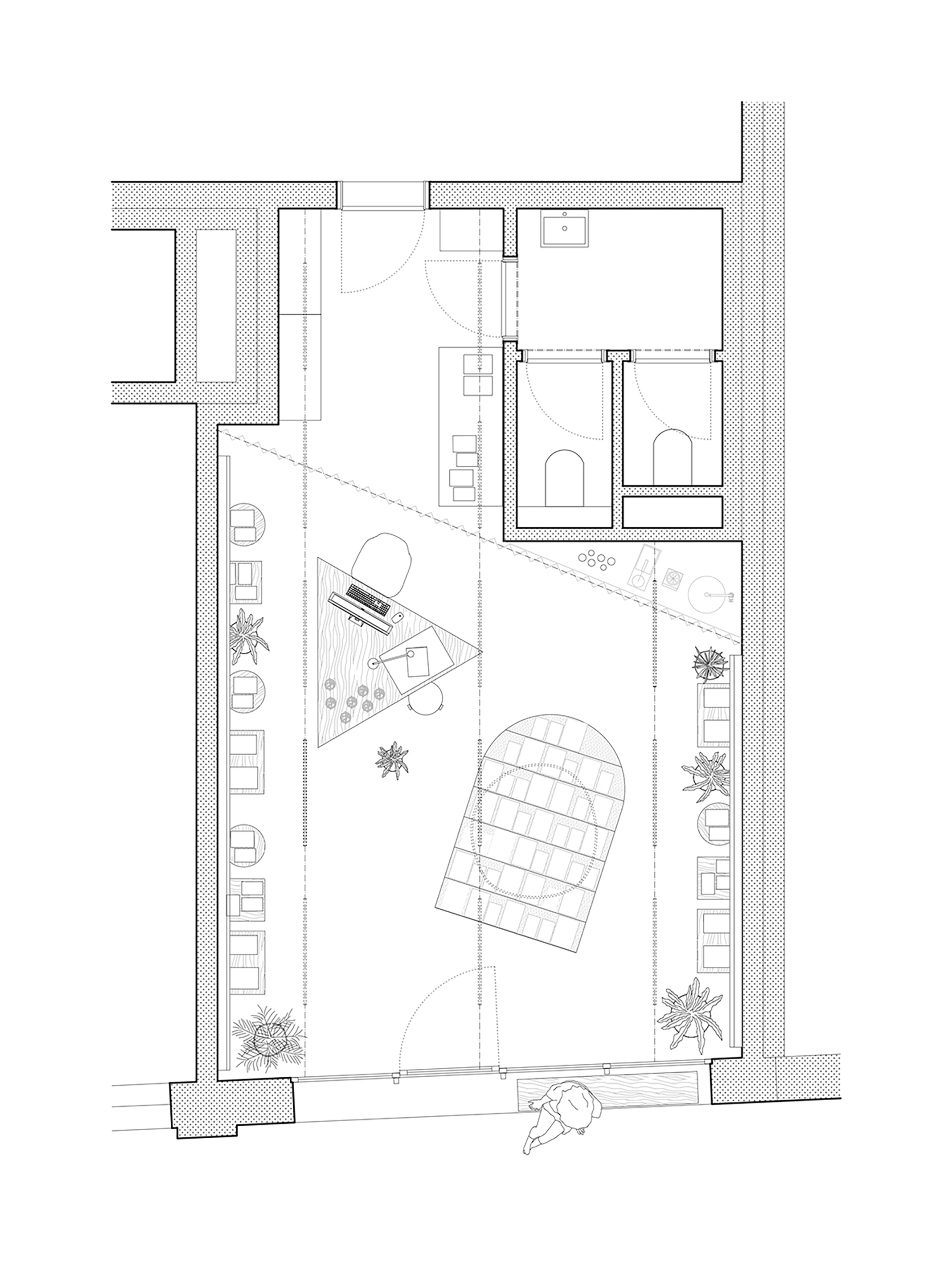
Kníhkupectvo ako delikatesy, kniha ako chlieb pre nasýtenie ľudskej mysle. Zákaznícku zónu sme zbytočne nezaťažovali farbou a výraznými textúrami, biele police, jaseňové stoly a pozinkovaný plech vytvárajú galerijný charakter prezentovania knihy ako výstavného umeleckého diela. Skladový priestor a zázemie sme pretreli žltou farbou a akcentovali tak jeho čisto funkčné využitie. Samotný priestor je postavený na vložených objektoch komponovaných ako scéna vnímateľná z ulice. Predajný pult sme schválne postavili do polohy stola ako priateľského posedenia pri káve alebo diskutovaní o knihách. Ústredným objektom je obložený chlebíček kde sú vždy vystavené najnovšie knižné delikatesy, ostatné knihy sú prezentované na bočných stenách. Vymykáme sa tradičnému kníhkupectvu a prezentujeme knihu ako obraz.

Foto: Matej Hakár

Foto: Matej Hakár

Foto: Matej Hakár

Foto: Matej Hakár

Vyhlasovateľ:
Organizační partneri:
Pod záštitou:
Samosprávnych krajov Slovenska
Primátora hlavného mesta SR - Bratislavy
Starostu mestskej časti Bratislava - Staré mesto
Z verejných zdrojov podporil:
Partner mobility:
Hlavní partneri:
Partneri:
Špeciálny partner:
Priestorový partner:
Produktoví partneri:
Generálni mediálni partneri:
Hlavní mediálni partneri:
Hlavní online mediálni partneri:
Mediálni partneri: