CE ZA AR 25

Bulharská 52

Bratislava

Rok realizácie: 2021

Ateliér: LANG BENEDEK ASSOCIATED ARCHITECTS s.r.o.

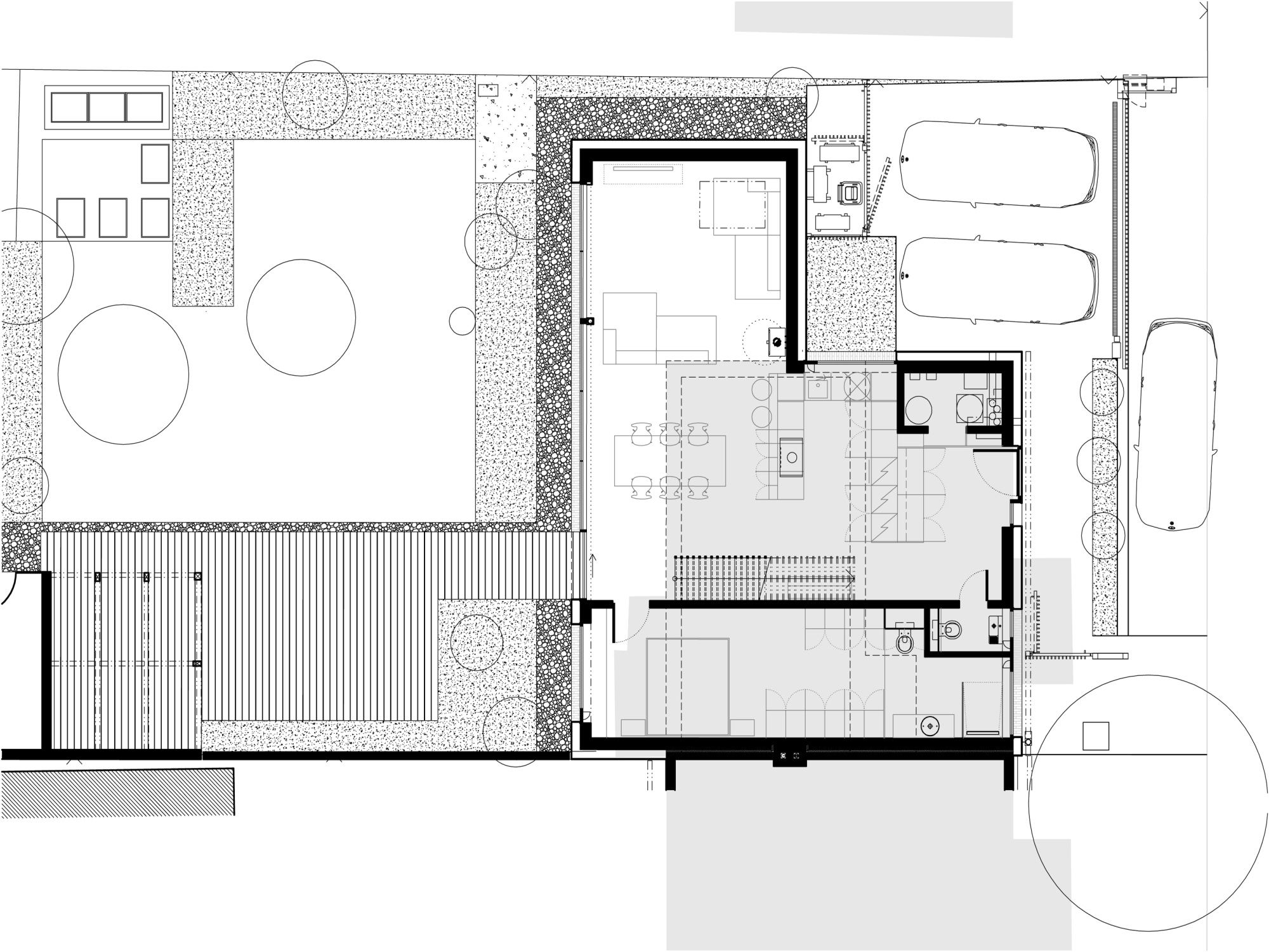
Koncept návrhu minimalizuje perforácie hmoty objektu smerom k verejným hlučným a prašným priestorom frekventovanej ulice Bulharská, snaží sa perforáciami hmoty maximálne otvoriť objekt do záhrady. Nočná, kľudová časť situovaná v podkroví je tvorená samostatnou hosťovskou izbou s blízkou kúpeľnou s vaňou, WC a umývadlom. Celok dopĺňa dvojica izieb, ktoré sa môžu užívať ako jeden ucelený, s priznanými krokvami ako v hosťovskej izbe, otvorený priestor priestrannej detskej izby. Vtipný tehličkový obklad dverí do rušnej ulice vytvára kompaktný výraz v uličnej línii. Vzhľadom na uličný hluk je do ulice situovaná len predsieň, kúpeľňa a technická miestnosť. Malý mestský dom bol zámer.

Foto: Welin Nagyova

Foto: Welin Nagyova

Foto: Welin Nagyova

Foto: Welin Nagyova

Foto: Welin Nagyova

Vyhlasovateľ:
Organizační partneri:
Pod záštitou:
Samosprávnych krajov Slovenska
Primátora hlavného mesta SR - Bratislavy
Starostu mestskej časti Bratislava - Staré mesto
Z verejných zdrojov podporil:
Partner mobility:
Hlavní partneri:
Partneri:
Špeciálny partner:
Priestorový partner:
Produktoví partneri:
Generálni mediálni partneri:
Hlavní mediálni partneri:
Hlavní online mediálni partneri:
Mediálni partneri: