CE ZA AR 25

Byt T&M

Bratislava

Rok realizácie: 2020

Ateliér: plusminusarchitects

Architektúra: Maroš Fečík, Filip Kandravý

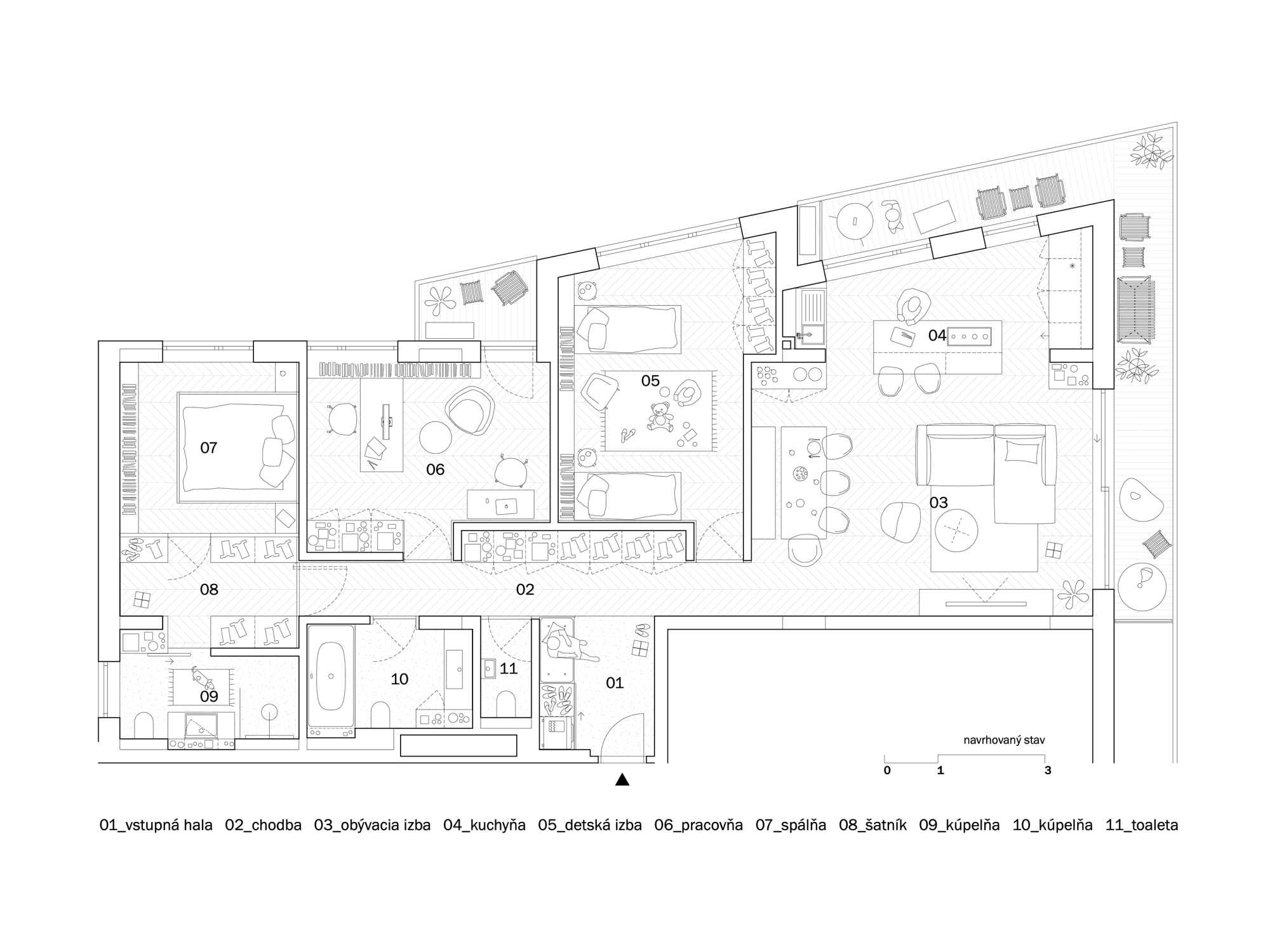
Pôvodná dispozícia si so sebou niesla nepríjemné znaky spojenia dvoch menších bytov do jedného väčšieho. Byt kompletne očisťujeme od nenosných konštrukcií, podláh a pozostatkov (ne)vkusu pôvodných majiteľov. Ponechávame len nosné prvky skeletovej konštrukcie spolu s obvodovými múrmi a začíname priestor ohýbať podľa požiadaviek budúcich obyvateľov. Preusporadúvame poradie izieb a funkčných zón, skrývame všetko čo nemá byť vidieť a vytvárame kontinuálne hygienické jadro. Vzniká plne vybavené intímne krídlo rodičovskej spálne, pridávame pracovňu a detskú izbu pre malého nezbedníka. Meníme dispozičný koncept kuchyne a otvárame ju viac do obývacej izby. Varenie je divadlo a kuchyňa je srdcom bytu

Foto: Maroš Fečík

Foto: Maroš Fečík

Foto: Maroš Fečík

Foto: Maroš Fečík

Foto: Maroš Fečík

Foto: Maroš Fečík

Vyhlasovateľ:
Organizační partneri:
Pod záštitou:
Samosprávnych krajov Slovenska
Primátora hlavného mesta SR - Bratislavy
Starostu mestskej časti Bratislava - Staré mesto
Z verejných zdrojov podporil:
Partner mobility:
Hlavní partneri:
Partneri:
Špeciálny partner:
Priestorový partner:
Produktoví partneri:
Generálni mediálni partneri:
Hlavní mediálni partneri:
Hlavní online mediálni partneri:
Mediálni partneri: